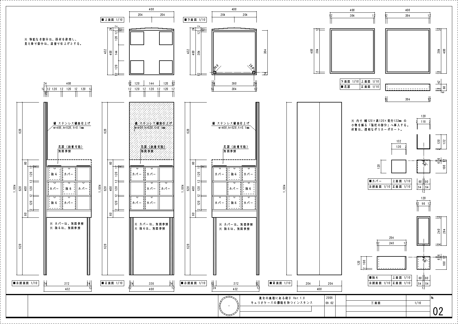
トップ > 計画案 > 進化の過程にある椅子 > Ver.1.0 キュリオケースの機能を持つインスタンス - Plan/Elevation/Section [ .gif ]
Concept Data Sketch ▼ Drawing
Plan/Elevation/Section [ .gif , .sfc ]
Painting Movie VRML , VET Photograph
 << 丸三方の形をしたインスタンス 木の背とガラスと木の前脚を持つインスタンス >>