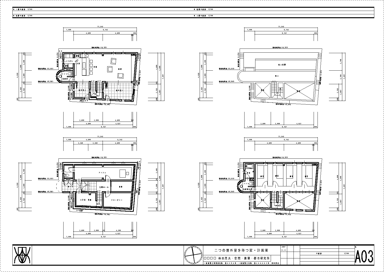
トップ > 計画案 > 二つの屋外室を持つ家 - Plan [ .gif ]
Concept Data Sketch ▼ Drawing
Plan [ .gif , .sfc ] , Elevation/Section [ .gif , .sfc ]
Painting Movie VRML Photograph
 << 光井戸の家 屋上小庭園の家 >>