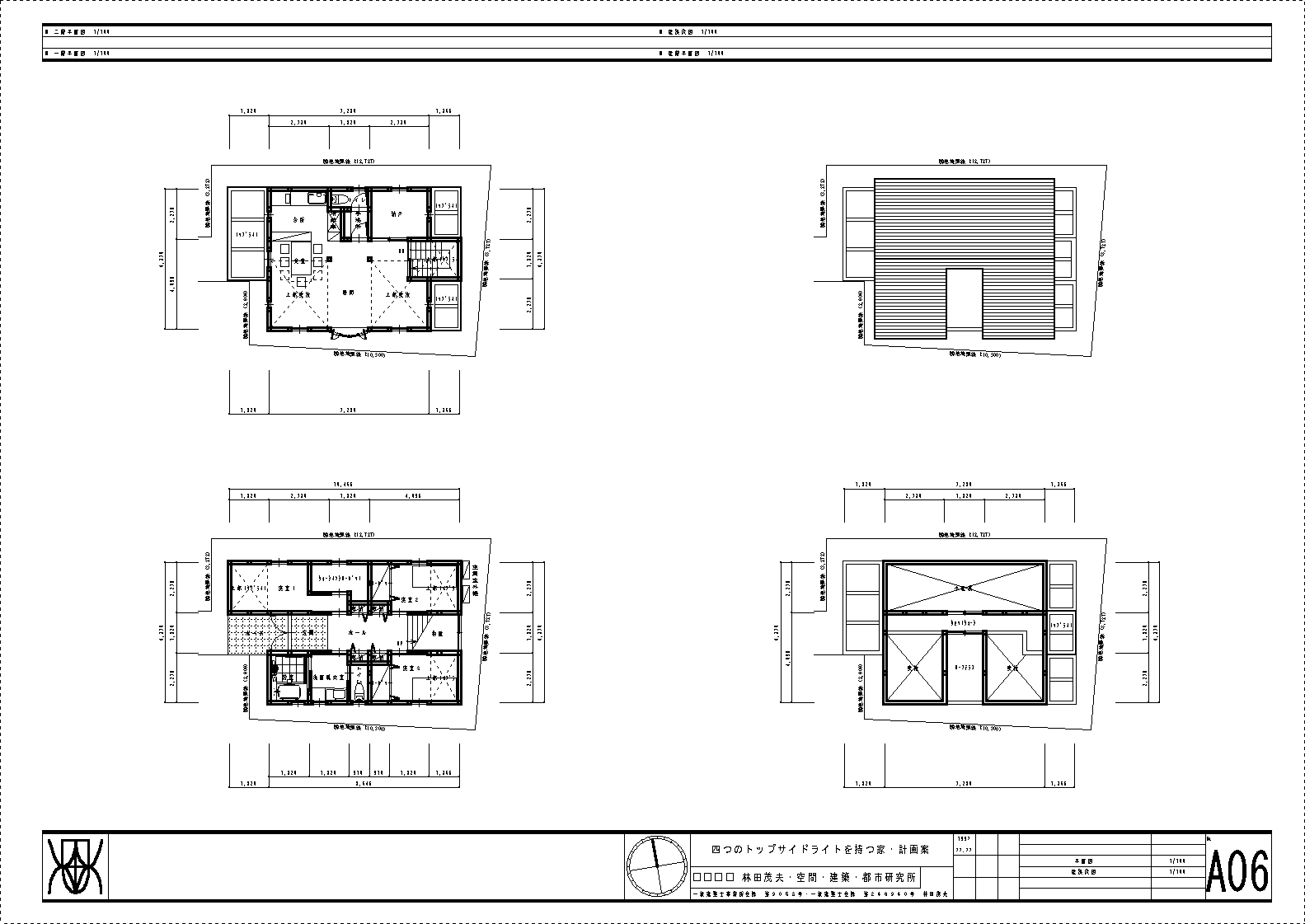
トップ > 計画案 > 四つのトップサイドライトを持つ家 - Plan [ .gif ]
Concept Data Sketch ▼ Drawing
Plan [ .gif , .sfc ] , Elevation/Section [ .gif , .sfc ]
Painting Movie VRML Photograph
 << 屋上小庭園の家 地下室を持つ家 >>